Genehmigungspläne des Einfamilienhauses


Kellergeschoss (UG)
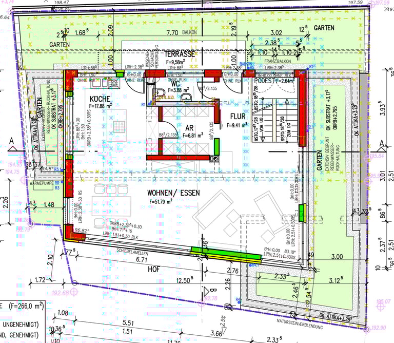
Das Erdgeschoss bildet den zentralen Wohn- und Essbereich des Hauses mit direktem Zugang zur Terrasse und in den Garten. Die Küche ist in unmittelbarer Nähe angeordnet und funktional in den Grundriss integriert.
Ergänzt wird das Raumangebot durch einen Abstellraum, der alternativ als Speisekammer genutzt werden kann, einen Flurbereich mit Platz für eine Garderobe sowie ein Gäste-WC. Die Erschließung ist klar und übersichtlich organisiert, der Übergang zu den Außenflächen ist barrierearm gestaltet.
















Das Untergeschoss umfasst funktionale Nutzräume sowie zwei großzügige Hobbyräume mit natürlichem Tageslicht. Zusätzlich sind ein Hausanschluss- und ein Technikraum vorgesehen.
Die Anordnung der Räume ermöglicht eine flexible Nutzung, beispielsweise als Arbeits-, Hobby- oder Abstellflächen. Ein integrierter Garage-und-Haus-Zugang sorgt für kurze Wege und zusätzlichen Komfort. Der Zugang ins Haus ist witterungsgeschützt über die Garage möglich.
Für das Einfamilienhaus liegt eine vollständig ausgearbeitete und rechtskräftig genehmigte Planung vor.
Die statisch anspruchsvolle Gründung in massiver Stahlbetonbauweise ist bereits realisiert.
Der Weiterbau kann ohne zeitliche Verzögerung erfolgen.
Alle dargestellten Pläne entsprechen dem rechtskräftig genehmigten Planstand.
Erdgeschoss (EG)
Dachgeschoss (DG)
Das Dachgeschoss umfasst das Elternschlafzimmer mit Zugang zum Balkon sowie zwei weitere Zimmer, die flexibel als Kinder-, Gäste- oder Arbeitszimmer genutzt werden können.
Ein zentral angeordnetes Badezimmer mit Badewanne und Dusche ist vorgesehen. Die kompakte Flurführung ermöglicht kurze Wege und eine effiziente Organisation der privaten Räume.
Gebäudeansichten
Die folgenden Ansichten zeigen das genehmigte Erscheinungsbild des Einfamilienhauses aus allen relevanten Blickrichtungen. Dargestellt sind Gebäudeform, Dachgestaltung, Fassadenstruktur sowie die Einbindung in die Hanglage.
SO-Ansicht
SW-Ansicht
NW-Ansicht
NO-Ansicht
Schnitt BB
Schnitt AA
Der Längsschnitt AA zeigt die Höhenentwicklung des Gebäudes in der Hanglage sowie die massive Ausbildung des Untergeschosses in Stahlbetonbauweise.
Der Querschnitt zeigt die konstruktive Einbindung des Gebäudes in das ansteigende Gelände.
Gebäudeschnitte: Höhenentwicklung & Hangintegration
Die Schnitte verdeutlichen die Staffelung der Geschosse in der Hanglage sowie die massive Ausbildung des Untergeschosses in Stahlbetonbauweise.
Die konstruktive Einbindung in das Gelände ist vollständig geplant und genehmigt.
Grundrisse: Raumaufteilung der drei Ebenen
Aufbauend auf der bereits realisierten Stahlbeton-Gründung gliedert sich das Gebäude in drei funktional strukturierte Ebenen.
Die Planung verbindet großzügige Wohnbereiche mit klar definierten Rückzugszonen und einer effizienten Erschließung.
Darstellung verkleinert. Maßstab nicht verbindlich.
Grundlage ist der rechtskräftig genehmigte Planstand.
Genehmigungspläne des Einfamilienhauses


















Für das Einfamilienhaus liegt eine vollständig ausgearbeitete und rechtskräftig genehmigte Planung vor.
Die statisch anspruchsvolle Gründung in massiver Stahlbetonbauweise ist bereits realisiert.
Der Weiterbau kann ohne zeitliche Verzögerung erfolgen.
Alle dargestellten Pläne entsprechen dem rechtskräftig genehmigten Planstand.
Erdgeschoss (EG)
Dachgeschoss (DG)
Das Dachgeschoss umfasst das Elternschlafzimmer mit Zugang zum Balkon sowie zwei weitere Zimmer, die flexibel als Kinder-, Gäste- oder Arbeitszimmer genutzt werden können.
Ein zentral angeordnetes Badezimmer mit Badewanne und Dusche ist vorgesehen. Die kompakte Flurführung ermöglicht kurze Wege und eine effiziente Organisation der privaten Räume.
SO-Ansicht
SW-Ansicht
NW-Ansicht
NO-Ansicht
Gebäudeschnitte - Höhenentwicklung & Hangintegration
Die Schnitte verdeutlichen die Staffelung der Geschosse in der Hanglage sowie die massive Ausbildung des Untergeschosses in Stahlbetonbauweise.
Die konstruktive Einbindung in das Gelände ist vollständig geplant und genehmigt.
Schnitt BB
Schnitt AA
Kellergeschoss (UG)
Das Untergeschoss umfasst funktionale Nutzräume sowie zwei großzügige Hobbyräume mit natürlichem Tageslicht. Zusätzlich sind ein Hausanschluss- und ein Technikraum vorgesehen.
Die Anordnung der Räume ermöglicht eine flexible Nutzung, beispielsweise als Arbeits-, Hobby- oder Abstellflächen. Ein integrierter Garage-und-Haus-Zugang sorgt für kurze Wege und zusätzlichen Komfort. Der Zugang ins Haus ist witterungsgeschützt über die Garage möglich.
Das Erdgeschoss bildet den zentralen Wohn- und Essbereich des Hauses mit direktem Zugang zur Terrasse und in den Garten. Die Küche ist in unmittelbarer Nähe angeordnet und funktional in den Grundriss integriert.
Ergänzt wird das Raumangebot durch einen Abstellraum, der alternativ als Speisekammer genutzt werden kann, einen Flurbereich mit Platz für eine Garderobe sowie ein Gäste-WC. Die Erschließung ist klar und übersichtlich organisiert, der Übergang zu den Außenflächen ist barrierearm gestaltet.
Gebäudeansichten
Die folgenden Ansichten zeigen das genehmigte Erscheinungsbild des Einfamilienhauses aus allen relevanten Blickrichtungen. Dargestellt sind Gebäudeform, Dachgestaltung, Fassadenstruktur sowie die Einbindung in die Hanglage.
Der Längsschnitt AA zeigt die Höhenentwicklung des Gebäudes in der Hanglage sowie die massive Ausbildung des Untergeschosses in Stahlbetonbauweise.
Der Querschnitt zeigt die konstruktive Einbindung des Gebäudes in das ansteigende Gelände.
Grundrisse – Raumaufteilung der drei Ebenen
Aufbauend auf der bereits realisierten Stahlbeton-Gründung gliedert sich das Gebäude in drei funktional strukturierte Ebenen.
Die Planung verbindet großzügige Wohnbereiche mit klar definierten Rückzugszonen und einer effizienten Erschließung.
Darstellung verkleinert. Maßstab nicht verbindlich.
Grundlage ist der rechtskräftig genehmigte Planstand.
Grundstück
Einfamilienhaus mit Baugenehmigung zu verkaufen.
Kontaktdaten:
Email: rohbau-gimmeldingen@email.de
Handy: 0157 57322069
© 2026. All rights reserved.
